£2,250,000 Guide Price

LOCATION
Lilliput, Poole

BEDROOMS
4

BATHROOMS
4

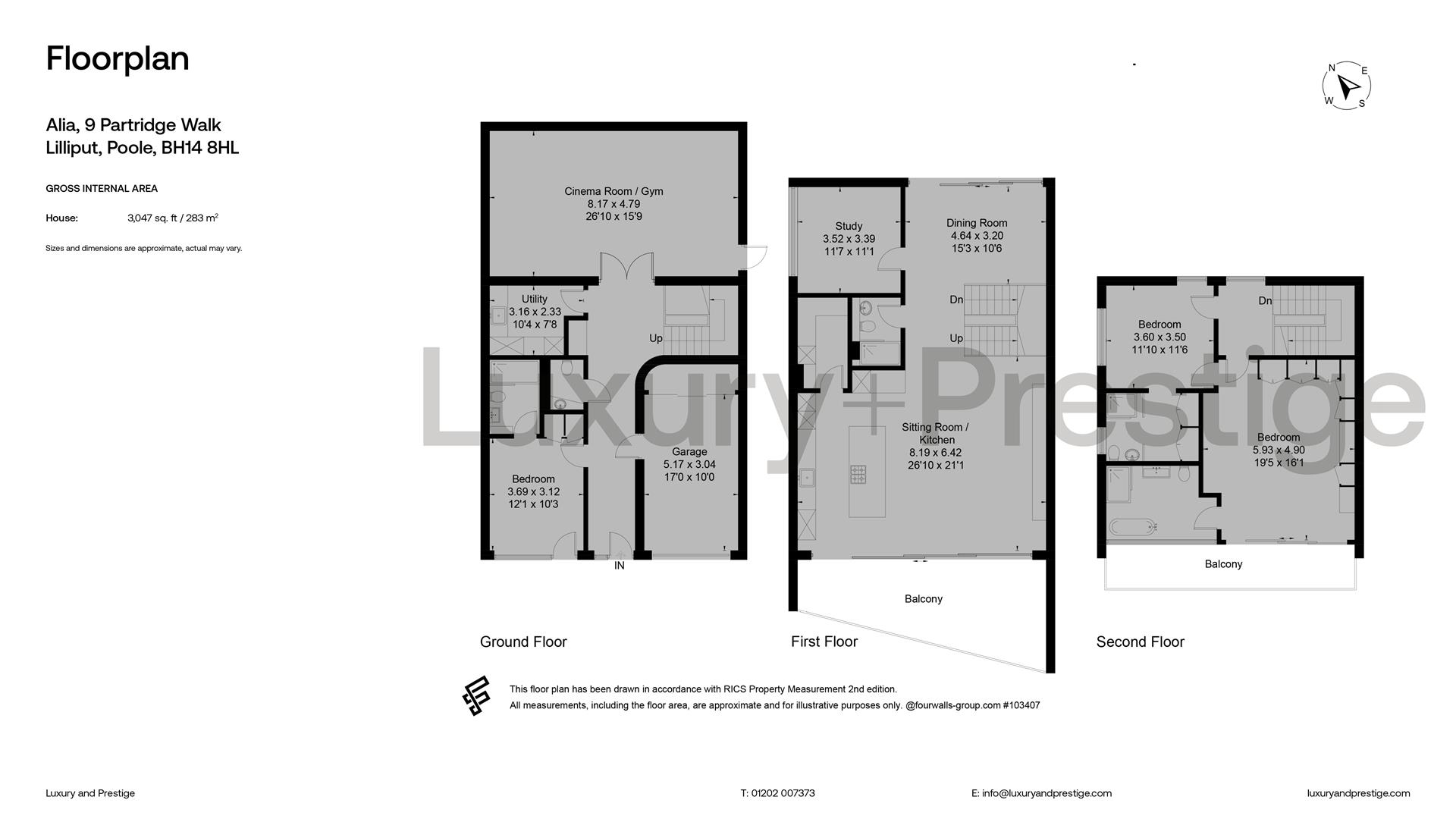
Alia 9 Partridge Walk, Lilliput, Poole, Dorset, BH14 8HL

Nestled in a quiet cul-de-sac in the highly sought-after suburb of Lilliput, Alia is an exceptional new-build home offering cutting-edge contemporary design. Stand out features include luxurious finishes as well as breathtaking views across the world-famous Poole Harbour. One of just two detached homes on this exclusive development by renowned local builders KLF Developments, Alia exemplifies meticulous attention to detail and intelligent spatial planning. Spanning just over 3000 square feet, this architecturally striking residence is arranged over three floors and features expansive south-facing balconies and a beautifully landscaped rear garden—perfectly designed to make the most of its prime coastal setting.

The lower level is ideal for guest accommodation or entertaining. It includes a spacious bedroom with a designer en-suite shower room, a separate utility room, integral garage, and a versatile entertainment space that could serve as a home spa, games room, or cinema (subject to purchaser requirements and at an additional cost). The heart of the home is a spectacular open-plan living space on the ground floor featuring a bespoke kitchen, complete with premium integrated appliances and a walk-in pantry. Floor-to-ceiling sliding glass doors flood the space with natural light and open out onto a large balcony—ideal for alfresco dining and sunset views. This floor also offers a flexible bedroom/study, a fully tiled shower room, and direct access to the landscaped garden. The luxurious principal suite dominates the top floor, boasting bespoke Novamobili wardrobes, a beautifully appointed en-suite with freestanding bath and walk-in shower, and access to a large private balcony with sweeping harbour views. There is also a further double bedroom with en-suite shower room and dressing area.

KEY FEATURES

  • Stunning new build home
  • Panoramic harbour views
  • Extends to 3,355 square feet
  • Striking architectural design
  • Four bedrooms, four bathrooms
  • South facing balconies and landscaped rear garden
  • Integral garage and off road parking
  • Quiet cul-de-sac location
  • Ready for occupation
  • Detailed specification upon request
Explore 3D space

LOCATION

Alia 9 Partridge Walk, Lilliput, Poole, Dorset, BH14 8HL

Interested in this property?
We would love to hear from you.