
Withingham Road, Branksome Park
£4,395,000
55
£3,500,000 Guide Price
LOCATION
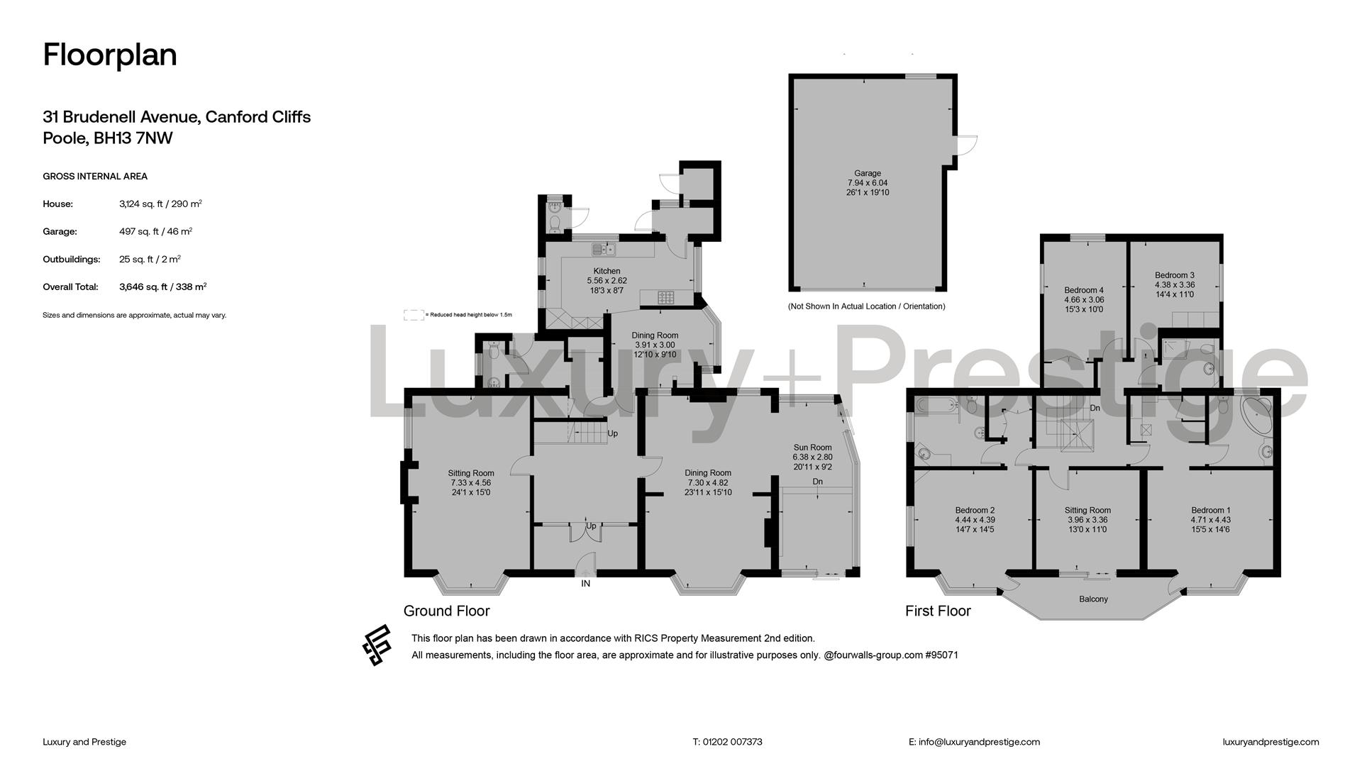
Canford Cliffs, Poole
BEDROOMS
5
BATHROOMS
3
31 Brudenell Avenue, Canford Cliffs, Poole, Dorset, BH13 7NW
KEY FEATURES
LOCATION